全体师生:
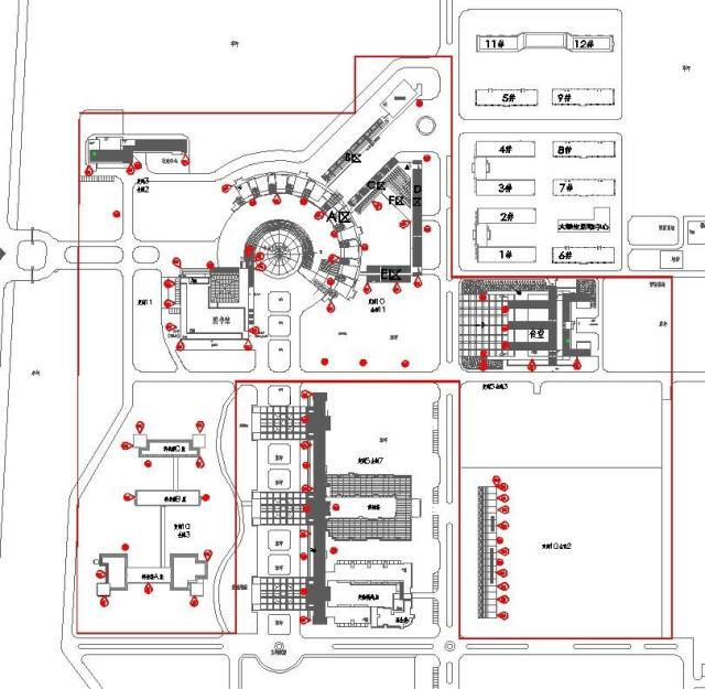
必赢官网无线校园网一期工程教学行政办公区室内无线AP布设已基本完成,现决定分批次进行测试,第八批次测试区域见附图,包括行政楼、图书馆、教学楼、餐厅(含篮球场区域)、科技楼、体育场(中午12点可测试)周边可进行测试,现将有关情况说明如下:
一、打开无线终端的WLAN服务功能,查找到“wfmu-net”的SSID,测试密码为:test2016,请连接测试。
二、各上网用户要切实提高网络与信息安全意识,严格遵守国家法律法规和学校规章制度,强化网络公德,规范上网行为,提高安全意识,保护个人信息安全,防范网络违法犯罪的发生。
三、由于无线网络建设的复杂性,学校将采用建设、测试、优化同步的方式,对无线网络信道、功率、覆盖、抗压、阻断等各方面测试优化,信号覆盖测试阶段不能保证效果和质量,在使用过程中发现的问题,请及时联系网络信息中心,电话:8462293、8462296、8462297。
四、第八批次测试中止时间为2016年12月16日20时。
特此通知。
附:无线网测试区域图
红色框内区域为测试区域
网络信息中心
2016年12月16日






